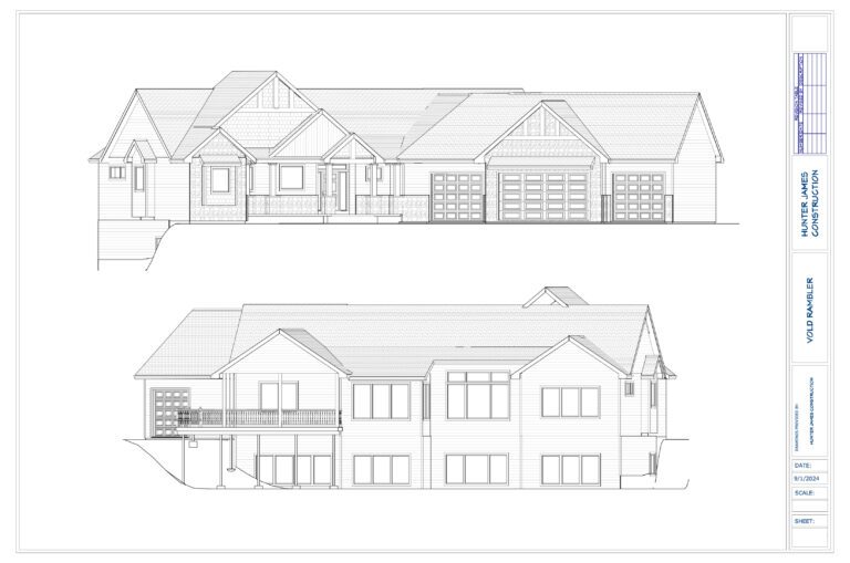
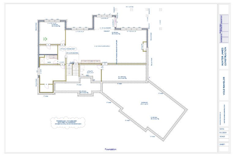
The Vold is a Rambler-style home with three bedrooms on the main floor and two in the basement, offering plenty of space for family and guests. Its 2.5-bath layout and open-concept design make daily living and entertaining effortless. A finished basement adds flexibility for a rec room, office, or extra living space. With modern comfort and smart design, the Vold is a perfect blend of style and functionality.
Square Feet:
2600 sq ft
Plan Type:
Ranch
Bedrooms:
3
Bathrooms:
2.5
